Tinne van ImmoWonen verkoopt deze prachtige nieuwe unieke Villa, achterin gelegen perceel, in centrum Oud-Heverlee.
Check het filmpje op de website van ImmoWonen bij het pand zelf!
Boek je afspraak online bij het pand zelf via www.immowonen.be
1ste kijkweekend (enkel op afspraak) voor Vrijdag 3/4/26 of zaterdag 4/4/26.
Breng je bod uit vooraf aan dinsdag 7 april 14h.
Prachtig moderne woning in Oud-Heverlee
Welkom in deze stijlvolle, nieuwbouw woning gelegen in het groene Oud-Heverlee. Dit eigentijdse huis biedt u een perfecte combinatie van comfort, design en ruimte op een perceel van 1.443 m².
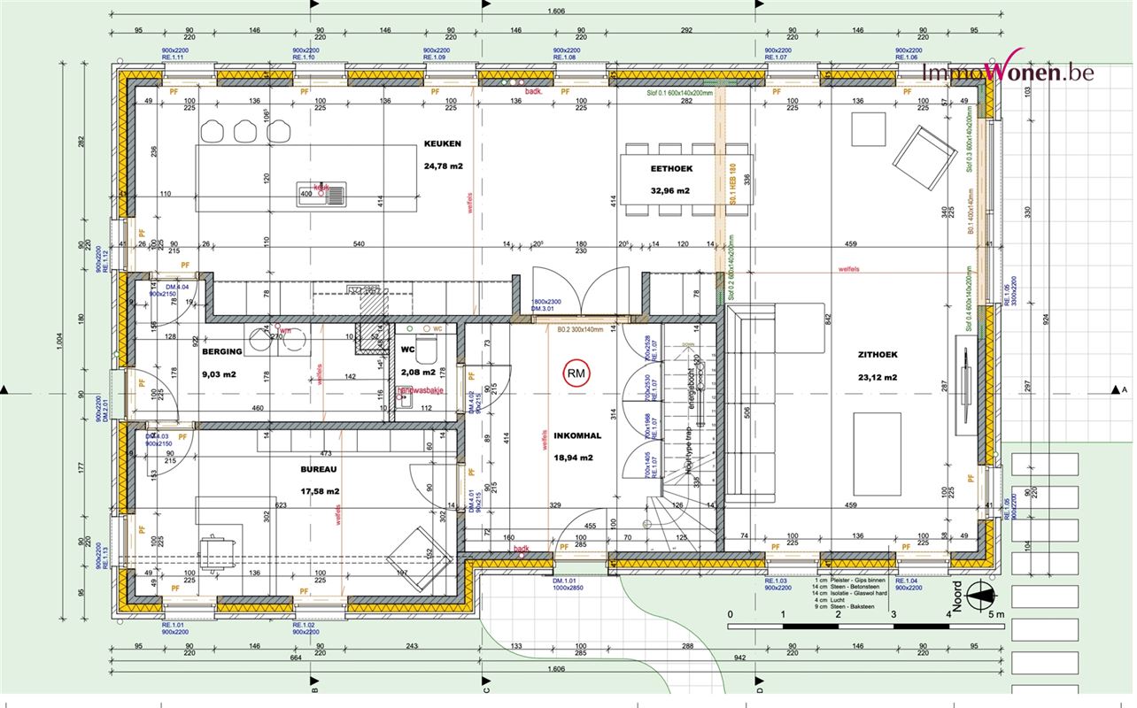
Indeling: Het pand beschikt over een 260 m² bewoonbare oppervlakte, verdeeld over twee verdiepingen. Beneden vindt u een open woon-eetkeuken met natuurlijke lichtinval dankzij grote schuiframen, een praktische bijkeuken, inpandige berging en een gastentoilet, en een kantoorruimte (of 4de slaapkamer). Boven zijn er 3 comfortabele slaapkamers en twee volledig uitgeruste badkamers met moderne afwerking.
Kenmerken: De woning beschikt over zonnepanelen op het dak, een moderne open keuken met kwaliteitsvol design, vloerverwarming en luxe badkamers. De masterbedroom heeft haar eigen badkamer, met inloopdouche, ligbad, 2 wastafels en een toilet. De 2de ruime badkamer is voorzien van een inloopdouche wastafel. Het 3de toilet bevindt zich afzonderlijk in de gang. Er is een waterput van 10 000 liter aanwezig. Er is een wadi in het perceel ingebouwd. Er is ook een warmtepomp aanwezig. Er is een erfdienstbaarheid voorzien van 2 meter voor de gemeente Oud-Heverlee op het einde aan het noordelijk gedeelte van het perceel. Dit werd door de gemeente nog aangevraagd tijdens de bouw van dit mooie pand.
opm: de keuken is wit hoor, niet lichtblauw (lichtblauw is de beschermlaag die verwijderd wordt éénmaal in gebruik<).
Ligging: Zeer rustig gelegen in een groene omgeving, zonder enig geluidoverlast, met veel privacy, in het centrum van Oud-Heverlee en op fietsafstand van Leuven, Imec, UZ Leuven, KuLeuven en vele scholen.
Deze woning is ideaal voor gezinnen die op zoek zijn naar modern comfort en ruimte in een aangename natuurrijke omgeving.
De woning zal in overleg met de voorliggende buren, nog een afsluiting bepalen en samen betalen. De aanleg van een terras en autostaanplaatsen zijn voorzien in de vergunning. Ze dient nog aangelegd en betaald te worden door de koper. De woning is onmiddellijk beschikbaar en instapklaar.
Tinne De Lepeleire van ImmoWonen zal je alle info bezorgen die je nog wenst!



